Ukraine Uncovers Critical Intel on Russia"s K-555 Nuclear Submarine, Revealing Key Vulnerabilities
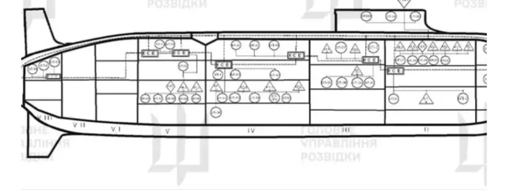
In a significant intelligence breakthrough, Ukraine"s military intelligence agency (HUR) announced it has obtained sensitive documents detailing Russia"s newest nuclear submarine, the K-555 Knyaz Pozharsky. This Project 955A Borei-A-class vessel, which plays a crucial role in Russia"s nuclear triad, was officially commissioned into service on July 24, 2025, during a ceremony attended by President Vladimir Putin. The leaked files reportedly include vital information about the submarine"s crew, combat instructions, schematics, and operational protocols, shedding light on its technical limitations.
Background & Context
The Knyaz Pozharsky represents a significant advancement in Russia’s naval capabilities, being part of a class of submarines designed to enhance the country’s strategic deterrent. The Borei-A-class vessels are equipped with advanced missile systems, enabling them to launch nuclear strikes from underwater. As tensions continue to rise between Russia and Ukraine, the insights gained from the Knyaz Pozharsky documents could potentially alter the balance of power in the region, especially concerning naval engagements and strategic planning.
Understanding the operational capabilities and limitations of such a critical asset is vital for Ukraine, which has been embroiled in conflict with Russia since 2014. HUR"s acquisition of this intelligence underscores the ongoing intelligence warfare that characterizes modern conflicts, where information can be as potent as conventional weaponry.
Key Developments
According to HUR, the classified documents reveal not only the technical specifications of the Knyaz Pozharsky but also operational protocols and combat strategies that could be exploited by Ukrainian forces. The intelligence suggests that the submarine may have vulnerabilities that could be targeted in the event of a conflict escalation. This includes potential weaknesses in its missile systems and operational readiness, which could hinder its effectiveness during critical missions.
In a statement, a spokesperson for HUR emphasized the importance of this intelligence: “Understanding the limitations of our adversaries’ capabilities is crucial for our strategic planning. This information will help us develop countermeasures and enhance our own operational readiness.” The documents are expected to inform Ukraine"s military strategy moving forward, particularly in maritime operations.
Broader Impact
The implications of this intelligence leak extend beyond Ukraine’s immediate military strategy. Experts suggest that the revelations could lead to increased scrutiny of Russia"s naval capabilities from NATO and other Western allies. This development may prompt a reevaluation of naval deployments in the Black Sea and Arctic regions, where Russian submarines are known to operate.
Historically, submarine warfare has been a game-changer in naval conflicts, and the Knyaz Pozharsky is no exception. The potential vulnerabilities exposed by HUR could embolden Ukraine"s allies to provide more advanced military support, including anti-submarine warfare technologies. As previously reported, recent developments in various global military exercises, such as China"s PLA launching massive live-fire exercises, indicate a growing focus on enhancing military readiness among nations in response to perceived threats.
What"s Next
As Ukraine processes and utilizes the newly acquired intelligence, the international community will be watching closely. It is anticipated that Ukraine will leverage this information in upcoming military operations, potentially altering the tactics used against Russian naval forces. Additionally, diplomatic channels may see increased activity as allies discuss the implications of this intelligence for regional security dynamics.
Moreover, the Russian response to this intelligence leak will be critical. Moscow may take steps to bolster the security of its submarine fleet or conduct counter-intelligence measures to mitigate the impact of the exposed vulnerabilities. As the conflict evolves, the interplay of intelligence, military strategy, and diplomatic relations will undoubtedly shape future developments in the region.







